
Syria | Post–War Housing
Models of Social Housing
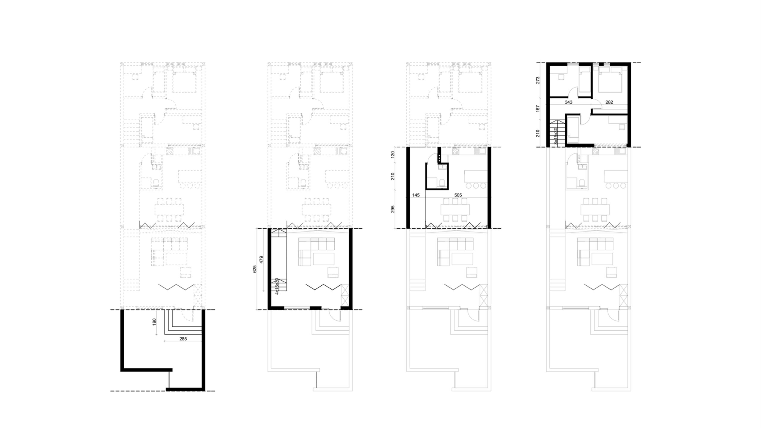
The concept of postwar Syrian housing is based on the repetition of a simple, adaptable building form that responds to the country’s need for rapid reconstruction and resilience. The core idea is to reuse rubble — the remains of destroyed urban structures — as a new foundation for rebuilding homes and communities. This approach transforms the debris of war into the base for renewal, both physically and symbolically.

The proposed housing units can be constructed on the hills of rubble that emerged from the ruined city center or in mountainous terrain, allowing for natural adaptation to the topography. This flexibility ensures that the design can be adjusted according to local conditions, materials, and environmental context.

plans
The simplicity of the architecture ensures that the houses can be easily replicated, modified, and built by local communities using minimal tools and locally sourced materials. In this way, the project empowers people to take part in the rebuilding process, fostering a sense of ownership, stability, and hope.
